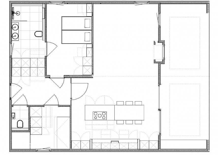
Casa móvel versátil e confortável Apresentamos esta magnífica casa móvel T2, com uma área total de 68 m² inteligentemente distribuída para oferecer o máximo de conforto, funcionalidade e qualidade de vida. Uma solução perfeita para habitação permanente, casa de férias ou projeto de turismo rural. 📐 Características principais: • Tipologia: T2 – 2 quartos • Área total: 68 m² (48 m² + 20 m² de módulo adicional) • Dimensões: • Módulo principal: 12 m x 4 m • Módulo adicional: 8 m x 2,5 m 🛏️ Composição interior: • 2 quartos confortáveis e bem iluminados • Sala de estar ampla e luminosa • Cozinha funcional com possibilidade de personalização conforme as necessidades • Casa de banho completa com acabamentos práticos e modernos • Excelente isolamento térmico e acústico para máximo conforto em todas as estações • Estrutura robusta e transportável, ideal para diversos tipos de terrenos 🚛 Facilidade de transporte e instalação: • Projeto pensado para transporte fácil e instalação rápida • Não necessita de fundações permanentes, podendo ser instalada em terrenos rústicos, quintas, parques de campismo ou projetos turísticos • Solução versátil para quem procura mobilidade e qualidade num só produto ✅ Ideal para: • Habitação permanente • Casas de férias ou segunda residência • Turismo rural, glamping e alojamentos temporários • Investidores em projetos turísticos com alta flexibilidade Entre em contato com a nossa equipa para mais informações sobre financiamento, personalização e prazos de entrega.
Entendemos que financiar um projeto imobiliário pode ser desafiante. Por isso, oferecemos soluções flexíveis de pagamento fraccionado para facilitar a compra da sua casa contentor, sem comprometer os seus objetivos.:
Inicie o seu projeto com tranquilidade com um sinal reduzido. O valor restante será pago em várias parcelas, conforme cronograma acordado.
Acelere a produção e a entrega da sua casa móvel. O restante será pago no momento da entrega.
Escolha a simplicidade com o pagamento total no ato da encomenda e beneficie de entrega gratuita no seu domicílio.
Oferecemos o serviço de transporte e instalação das nossas casas em todo o
território nacional.
Nota: Os custos de transporte e instalação não estão sempre incluídos no preço de venda. O valor será
calculado com base na localização do terreno e nas condições de acesso.
Após a confirmação da encomenda, entraremos em contacto para: Avaliar o local de entrega Confirmar a viabilidade do acesso Apresentar, se necessário, um orçamento adicional O terreno deve estar limpo, nivelado e acessível a camiões. Se for necessário o uso de grua ou outro equipamento especial, será informado antecipadamente.
Estamos comprometidos em tornar sua experiência de compra a mais tranquila possível. Se tiver dúvidas sobre o processo de pagamento, não hesite em nos contactar.